Commandez le livre en ligne
Les aqueducs de Saintes
AU FIL DE L'EAU
 
Jean-Louis Hillairet
Paypal port gratis
PORTION PRÉCÉDENTE DES AQUEDUCS
PORTION SUIVANTE DES AQUEDUCS
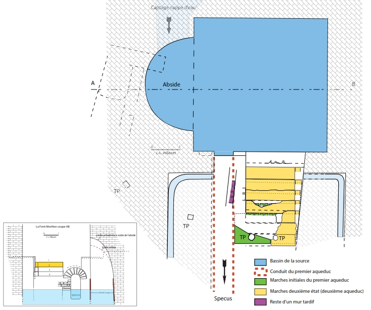
L’exploration de la cavité naturelle d’où sortait l’eau de la source a permis d’observer les restes d’une maçonnerie antique ainsi qu’une salle assez vaste de 5 à 6 mètres de longueur dans laquelle arrivent plusieurs boyaux.
Un mobilier antique important de verrerie a été mis au jour lors des fouilles du bassin (116 fragments et une estampille sur sigillée datable de la première moitié du premier siècle de notre ère). La présence de verreries fragmentées, le bassin en forme d’abside et l’enduit mural décoratif laisse à penser qu’il s’agirait d’une source sanctuaire.
Le conduit du premier aqueduc se situe sur les vingt premiers mètres depuis la source. Les piédroits du specus sont réalisés en moellons liés au mortier sur 1,40 m de hauteur. La voûte en plein cintre est réalisée en pierres liées au mortier. Le dessus de la voûte (extrados) a reçu un enduit de mortier. Le profil, présente une largeur de 66 cm sur une hauteur de 1,72 m au milieu du cintre.
Il existe une petite rigole en pente vers l’extérieur de 20 cm de largeur sur 10 cm de profondeur, permettant d’évacuer l’eau de pluie à l’opposé du bassin de la source. Celle-ci provenait sans aucun doute d’une toiture se situant au-dessus du bassin de la source et de l’escalier. Quatre trous suggérant des poteaux support de la charpente et l’absence de découverte de mur suggèrent que l’ensemble du bâtiment recouvrant la source était en bois.
Cette fontaine correspond au captage d’une nappe d’eau souterraine alimentant le premier aqueduc antique de Mediolanum. Cette source fournit aujourd’hui une partie de l’eau du ruisseau l’″Escambouille″. L’ensemble de l’aménagement est en forme de nymphée, composée d’un bassin carré de 4,66 m de côté, contiguë à une abside de 1,64 m de rayon qui a gardé son toit calcaire taillé en forme de cul-de-four. Ces deux éléments formaient ainsi le bassin de la source du premier aqueduc antique de Saintes. Nous avons noté la présence d’un enduit mural d’un centimètre d’épaisseur de couleur rouge pompéien, suggérant des peintures murales sur toute la hauteur.
 
Sur la paroi ouest, l’ingénieur romain a fait bâtir le conduit de l’aqueduc sur 1,20 m de largeur, puis le reste de l’espace a été dédié à un escalier, permettant l’accès au bassin de la source depuis la surface. Cet escalier est composé de cinq grands blocs calcaires de 1,70 m de longueur correspondant au dernier état de construction sous lequel il a été observé un état antérieur de l’escalier (peut-être celui d’origine).
SOURCE DE LA FONT-MORILLON (PREMIER AQUEDUC)
COMMANDER LE LIVRE
ASSOCIATION
NOUS CONTACTER
LOCALISATION
PRÉSENTATION
Les Aqueducs Antiques de Saintes
Vous souhaitez en savoir plus sur les aqueducs de Saintes ? Vous pouvez commander le livre de l'archéologue Jean-Louis Hillairet ici
Ce site présente une partie des recherches effectuées depuis 2003 par Jean-Louis Hillairet, l'archéologue responsable de l'étude et des fouilles des aqueducs antiques de Saintes.
 

Remerciements pour les prospections pédestres et les fouilles qui ont eu lieu depuis près de 15 ans avec la participation matérielle et financière de la SAHCM (Société d'Archéologie et d'Histoire de la Charente Maritime) et ses nombreux bénévoles, tout particulièrement Vincent Miailhe pour les relevés topographiques et Gérard Couprie pour ses recherches de terrain. Remerciements également aux propriétaires des terrains fouillés pour leur intérêt ainsi qu'aux mairies.
COMMANDER LE LIVRE  : Les aqueducs de Saintes au fil de l'eau
NOUS CONTACTER : Jean-Louis HILLAIRET - Archéologue responsable des fouilles
ASSOCIATION - Société d'Archéologie et d'Histoire de la Charente Maritime
LOCALISATION
PRESENTATION